Leave a Message

Thank you for your message. We will be in touch with you shortly.

Explore Our Properties

Property Description

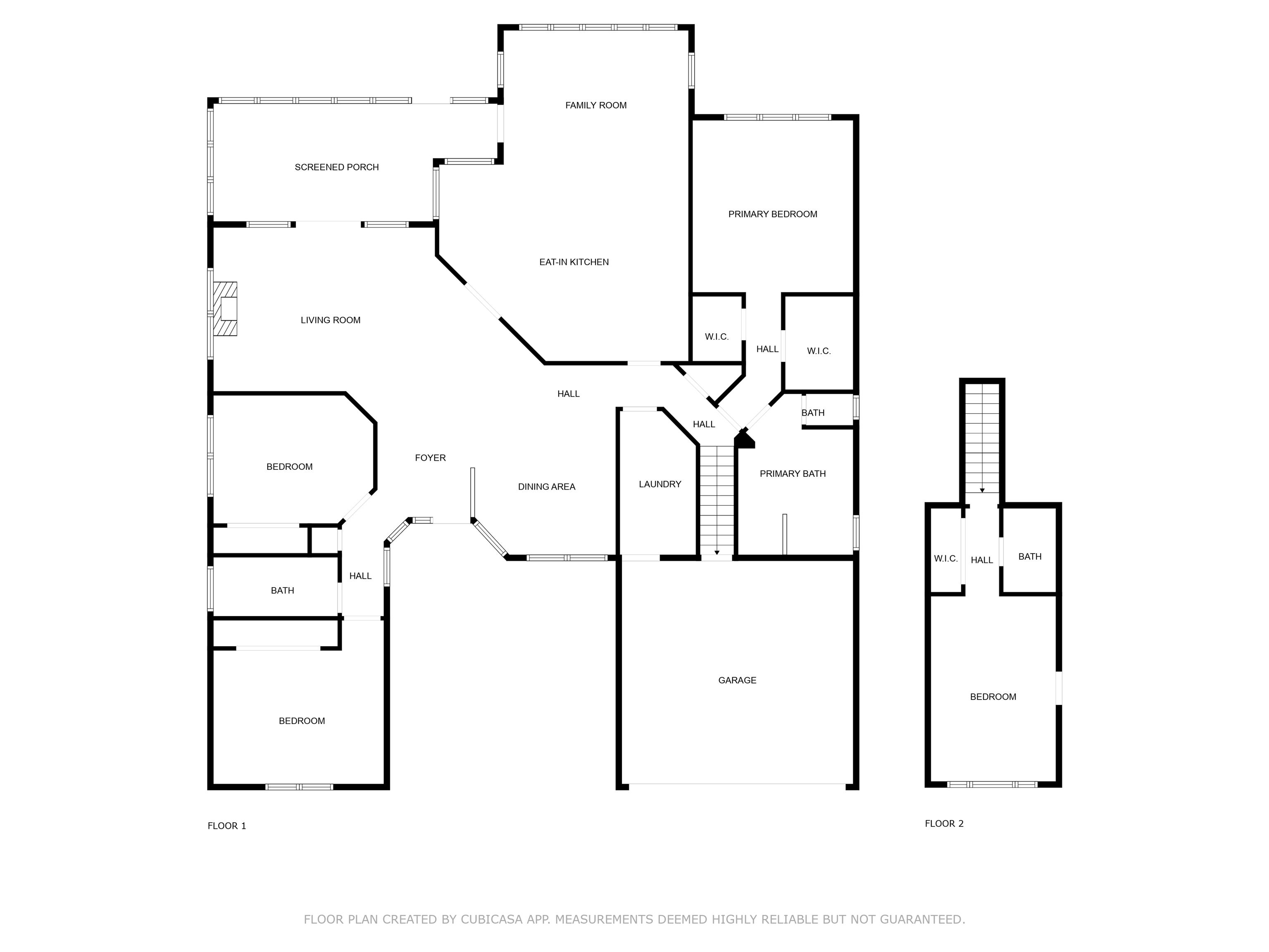
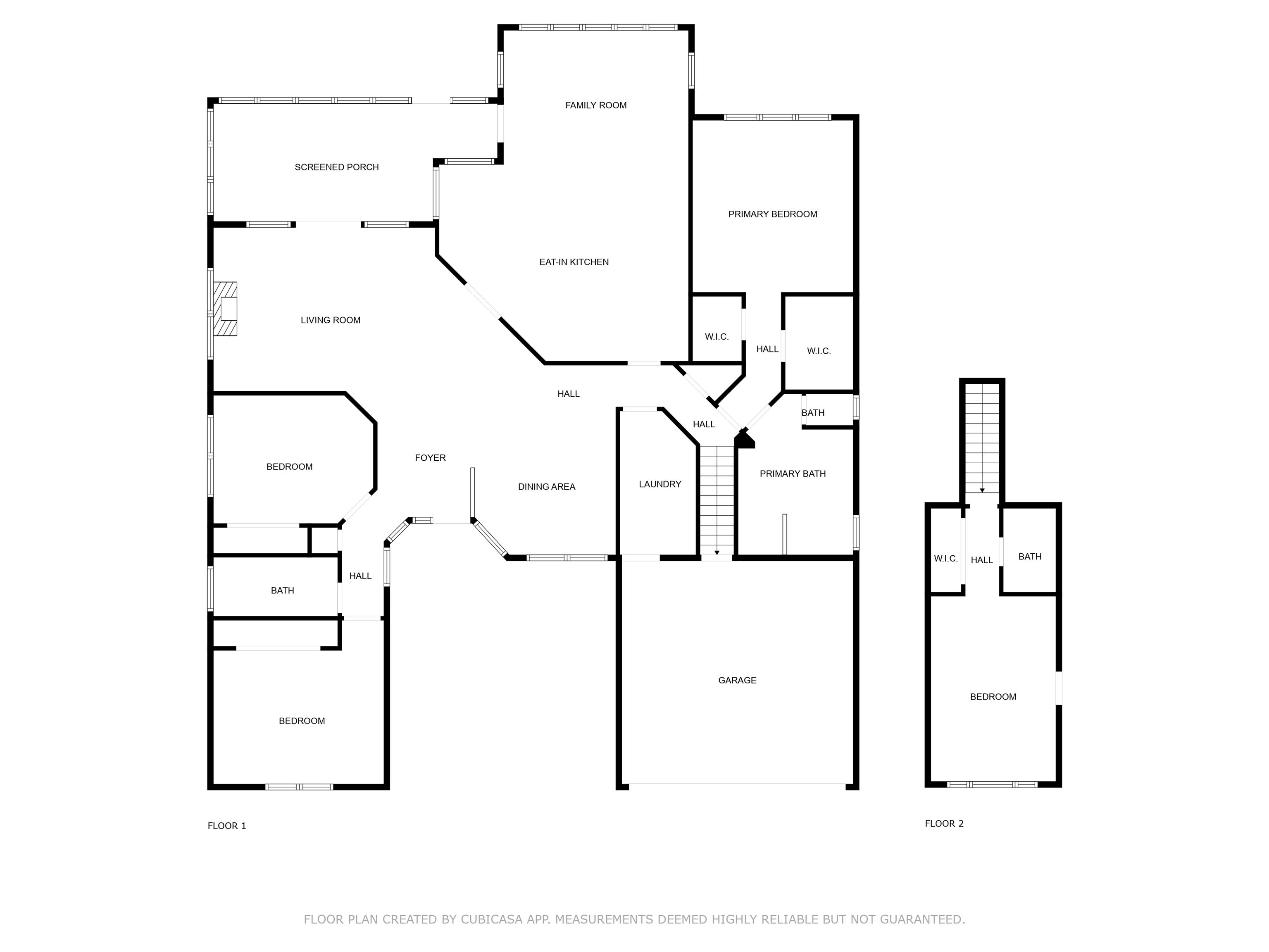
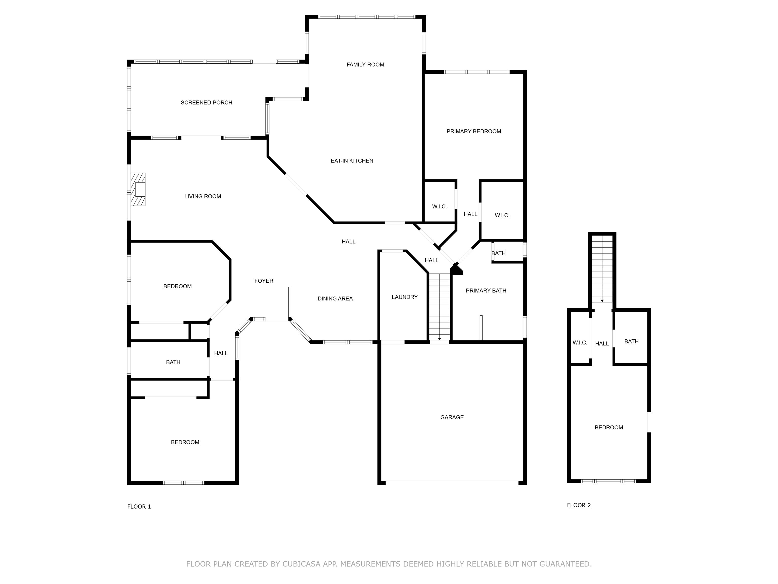
Discover this lovingly maintained 4-bedroom, 3-bath home in the sought-after Pebble Creek community of the International Club in Murrells Inlet. Built in 2006 and owned by the same family since, this residence offers a warm balance of elegance, function, and Lowcountry comfort. The main floor showcases wood flooring throughout, soaring transom windows, and abundant natural light. A formal dining room and cozy den with a gas fireplace and custom built-ins create inviting spaces for gathering, while the spacious kitchen is a true centerpiece. Featuring solid surface countertops, a tiled backsplash, pull-out cabinet drawers, stainless steel appliances, gas range with hood system, and a breakfast nook, it opens seamlessly to a second family room with expansive windows overlooking the lush backyard and golf course. Two main-level guest bedrooms (one currently serving as an office) sit alongside a full bath, while the primary suite offers a private retreat with dual custom walk-in closets and a spa-inspired bath complete with double sinks, soaking tub, walk-in shower, and generous linen storage. A well-equipped laundry room with built-in cabinetry, utility sink, and mini fridge connects directly to the two-car garage for convenience. Upstairs, a spacious fourth bedroom with full bath and closet provides privacy for guests, along with additional attic storage. Outdoor living is equally impressive: enjoy a 4-season room that opens to a large patio, a covered pergola with propane hookup for grilling, mature landscaping, stone paver walkways, and a peaceful fountain feature. With recent upgrades including a new roof (2023) and HVAC system (March 2025), this home is move-in ready with peace of mind built in. Pebble Creek residents also enjoy access to International Club's resort-style amenities - zero-entry pool, bocce ball court, playground, library, and fitness center - all just minutes from the restaurants, shopping, and beaches that make Murrells Inlet so special. Comfort, space, and community - right here at 209 Wicklow Drive.

Overview

Property Status
Active Under Contract
Lot Size
0.27 Acres
MLS ID
2523064
Property Type
Residential
Year Built
2006

Features & Amenities

Total Area
3,110 Sq.Ft.
Neighborhood
Gulf Stream Estates
Architecture Styles
Ranch
View Description
Golf Course
Stories
1
Garage Spaces
2.0
Water Source
Public
Utilites
Cable Available, Electricity Available, Phone Available, Sewer Available, Underground Utilities, Water Available
Pool
Community, Outdoor Pool
Lot Features
Near Golf Course, Outside City Limits, On Golf Course, Rectangular, Rectangular Lot
Parking
Attached, Garage, Two Car Garage, Garage Door Opener
Heat Type
Central, Electric, Propane
Air Conditioning
Central Air
Other Interior Features
Attic, Fireplace, Pull Down Attic Stairs, Permanent Attic Stairs, Split Bedrooms, Breakfast Bar, Bedroom on Main Level, Breakfast Area, Stainless Steel Appliances, Solid Surface Counters
Substructure
Slab
HOA Amenities
Clubhouse, Owner Allowed Golf Cart, Pet Restrictions, Security, Tenant Allowed Golf Cart
Security Features
Security System, Smoke Detector(s), Security Service
Other Exterior Features
Sprinkler/Irrigation, Patio, Storage
Elementary School
Saint James Elementary School
Middle School
Saint James Intermediate School
High School
Saint James High School
Sales Price
$585,000
HOA
$98/mo
Zoning
PUD

Downloads

209 Wicklow Dr.

Schedule a Tour

We would love to help you see this beautiful home! As a full-service brokerage, we can help you tour. Please submit an offer, and answer questions about the buying process.

Enter a valid email

Thank you

for your interest in 209 Wicklow Dr., Murrells Inlet, SC 29576

back to page
209 Wicklow Dr.
Navigate
Gulf Stream Estates

Explore Gulf Stream Estates

read more
209 Wicklow Dr.
explore in 3d

Mortgage Calculator

Estimate your monthly mortgage payment, including the principal and interest, property taxes, and HOA. Adjust the values to generate a more accurate rate.
$0,000 Your Payment 20 15 65
$0,000 Your Payment

I'm Interested In

209 Wicklow Dr.

or
  • CallMeredith Hall

    License #98605

    803.309.9486
  • Browse Today's

    Active Listings

    • 14 Cotillion Ct. For Sale

      $1,795,000

      14 Cotillion Ct., Georgetown, SC 29440

      • 4 Beds
      • 4 Baths
      • 4,187 Sq.Ft.
    • 1610 D Avenue For Sale

      $245,000

      1610 D Avenue, West Columbia, SC 29169

      • 3 Beds
      • 1 Bath
      • 1,354 Sq.Ft.
    • 86 Permit Ct. For Sale

      $3,195,000

      86 Permit Ct., Georgetown, SC 29440

      • 6 Beds
      • 7 Baths
      • 4,478 Sq.Ft.
    • 815 Front St. Unit: 2-H Active Under Contract

      $549,000

      815 Front St. Unit: 2-H, Georgetown, SC 29440

      • 2 Beds
      • 2 Baths
      • 1,440 Sq.Ft.
    • 224 Ocean Green Dr. For Sale

      $2,895,000

      224 Ocean Green Dr., Georgetown, SC 29440

      • 7 Beds
      • 8 Baths
      • 4,845 Sq.Ft.
    • 52 Trimmings Ct. For Sale

      $1,099,000

      52 Trimmings Ct., Pawleys Island, SC 29585

      • 4 Beds
      • 5 Baths
      • 4,200 Sq.Ft.
    • 99 Vineyard Place Unit: 32 For Sale

      $349,000

      99 Vineyard Place Unit: 32, Pawleys Island, SC 29585

      • 3 Beds
      • 3 Baths
      • 1,564 Sq.Ft.
    • 489-1 Golden Bear Dr. Unit: 1 For Sale

      $452,900

      489-1 Golden Bear Dr. Unit: 1, Pawleys Island, SC 29585

      • 3 Beds
      • 3 Baths
      • 2,100 Sq.Ft.
    • 1353 Hucks Rd. For Sale

      $450,000

      1353 Hucks Rd., Aynor, SC 29511

      • 3 Beds
      • 2 Baths
      • 1,598 Sq.Ft.
    • 118 Widgeon Dr. Active Under Contract

      $699,000

      118 Widgeon Dr., Pawleys Island, SC 29585

      • 4 Beds
      • 4 Baths
      • 2,361 Sq.Ft.
    • 135 South Dunes Dr. Unit: 509 Active Under Contract

      $1,250,000

      135 South Dunes Dr. Unit: 509, Pawleys Island, SC 29585

      • 3 Beds
      • 3 Baths
      • 1,650 Sq.Ft.
    • 1984 Jacana Dr. For Sale

      $237,000

      1984 Jacana Dr., Surfside Beach, SC 29575

      • 2 Beds
      • 2 Baths
      • 1,068 Sq.Ft.
    • 130 Parkview Dr. For Sale

      $629,400

      130 Parkview Dr., Pawleys Island, SC 29585

      • 3 Beds
      • 4 Baths
      • 2,900 Sq.Ft.
    • 2073 Timmerman Rd. For Sale

      $815,000

      2073 Timmerman Rd., Myrtle Beach, SC 29588

      • 4 Beds
      • 4 Baths
      • 2,854 Sq.Ft.
    • 7500 N Ocean Blvd. N Unit: 6014 For Sale

      $175,000

      7500 N Ocean Blvd. N Unit: 6014, Myrtle Beach, SC 29572

      • 1 Bed
      • 2 Baths
      • 559 Sq.Ft.
    • 48 Mingo Dr. Unit: 1E Active Under Contract

      $379,900

      48 Mingo Dr. Unit: 1E, Pawleys Island, SC 29585

      • 2 Beds
      • 2 Baths
      • 1,277 Sq.Ft.
    • 563 Lantana Circle For Sale

      $1,795,000

      563 Lantana Circle, Georgetown, SC 29440

      • 4 Beds
      • 4 Baths
      • 2,772 Sq.Ft.
    • 232 Lantana Circle For Sale

      $1,695,000

      232 Lantana Circle, Georgetown, SC 29440

      • 4 Beds
      • 6 Baths
      • 3,930 Sq.Ft.
    • 4650 Ironwood Dr. For Sale

      $995,000

      4650 Ironwood Dr., North Myrtle Beach, SC 29582

      • 4 Beds
      • 5 Baths
      • 3,493 Sq.Ft.
    • Lot 5 Whitehall Ave. For Sale

      $485,000

      Lot 5 Whitehall Ave., Georgetown, SC 29440

    • 357 Winslow Ave. For Sale

      $319,000

      357 Winslow Ave., Myrtle Beach, SC 29588

      • 4 Beds
      • 3 Baths
      • 1,740 Sq.Ft.
    • 288 Lumbee Circle Active Under Contract

      $479,900

      288 Lumbee Circle, Pawleys Island, SC 29585

      • 3 Beds
      • 3 Baths
      • 1,656 Sq.Ft.
    • 472 Myrtle Ave. For Sale

      $3,935,000

      472 Myrtle Ave., Pawleys Island, SC 29585

      • 4 Beds
      • 4 Baths
      • 2,713 Sq.Ft.
    • Lot 29 Sea Island Dr. For Sale

      $765,000

      Lot 29 Sea Island Dr., Georgetown, SC 29440

    • 575 Collins Meadow Dr. For Sale

      $2,800,000

      575 Collins Meadow Dr., Georgetown, SC 29440

      • 5 Beds
      • 5 Baths
      • 4,450 Sq.Ft.
    • 209 Wicklow Dr. Active Under Contract

      $585,000

      209 Wicklow Dr., Murrells Inlet, SC 29576

      • 4 Beds
      • 3 Baths
      • 2,650 Sq.Ft.
    • 102 Summer Haven Ct. Unit: North Bea Active Under Contract

      $3,495,000

      102 Summer Haven Ct. Unit: A-4, Georgetown, SC 29440

      • 4 Beds
      • 5 Baths
      • 3,555 Sq.Ft.
    • 427 Gandy Dr. Active Under Contract

      $825,000

      427 Gandy Dr., Andrews, SC 29510

      • 4 Beds
      • 3 Baths
      • 2,040 Sq.Ft.
    • 41 Redwing Ct. For Sale

      $499,900

      41 Redwing Ct., Pawleys Island, SC 29585

      • 3 Beds
      • 2 Baths
      • 1,505 Sq.Ft.
    • 116 Summer Haven Ct. Unit: 116 For Sale

      $3,150,000

      116 Summer Haven Ct. Unit: 11-B-2, Georgetown, SC 29440

      • 4 Beds
      • 6 Baths
      • 3,964 Sq.Ft.
    • 695 Country Club Dr. For Sale

      $889,000

      695 Country Club Dr., Pawleys Island, SC 29585

      • 4 Beds
      • 4 Baths
      • 3,141 Sq.Ft.
    • 92 Duany Dr. Active Under Contract

      $59,000

      92 Duany Dr., Georgetown, SC 29440

    • Lot 327 Wallace Pate Dr. Active Under Contract

      $500,000

      Lot 327 Wallace Pate Dr., Georgetown, SC 29440

    • 175 Commanders Island Rd. For Sale

      $69,000

      175 Commanders Island Rd., Georgetown, SC 29440

    • 938 Wallace Pate Dr. For Sale

      $1,879,000

      938 Wallace Pate Dr., Georgetown, SC 29440

      • 5 Beds
      • 6 Baths
      • 4,825 Sq.Ft.
    • 3354 Red Bluff Rd. For Sale

      $449,900

      3354 Red Bluff Rd., Loris, SC 29569

      • 3 Beds
      • 2 Baths
      • 1,788 Sq.Ft.
    • 118 Ballyhoo St. For Sale

      $2,450,000

      118 Ballyhoo St., Georgetown, SC 29440

      • 5 Beds
      • 6 Baths
      • 4,250 Sq.Ft.
    • 5601 N Ocean Blvd. Unit: D315 For Sale

      $345,000

      5601 N Ocean Blvd. Unit: D315, Myrtle Beach, SC 29577

      • 2 Beds
      • 2 Baths
      • 872 Sq.Ft.
    • 1377 Pine Road For Sale

      $960,000

      1377 Pine Road, Camden, SC 29020

      • 4 Beds
      • 3 Baths
      • 2,277 Sq.Ft.
    • 52 Olde Canal Loop For Sale

      $779,000

      52 Olde Canal Loop, Pawleys Island, SC 29585

      • 5 Beds
      • 3 Baths
      • 2,945 Sq.Ft.
    • 534 Mclernon Trace For Sale

      $399,900

      534 Mclernon Trace, Johns Island, SC 29455

      • 3 Beds
      • 3 Baths
      • 1,984 Sq.Ft.
    • 4827 Orchid Way Unit: 201 For Sale

      $309,999

      4827 Orchid Way Unit: 201, Myrtle Beach, SC 29577

      • 3 Beds
      • 2 Baths
      • 1,417 Sq.Ft.
    • 543 Meadowgrass Ct. For Sale

      $365,000

      543 Meadowgrass Ct., Myrtle Beach, SC 29588

      • 4 Beds
      • 3 Baths
      • 2,340 Sq.Ft.
    • 1502 Checker Court For Sale

      $925,000

      1502 Checker Court, Mount Pleasant, SC 29466

      • 4 Beds
      • 4 Baths
      • 2,987 Sq.Ft.
    • 3601 Colonel Vanderhorst Circle Active Under Contract

      $1,595,000

      3601 Colonel Vanderhorst Circle, Mount Pleasant, SC 29466

      • 4 Beds
      • 5 Baths
      • 3,961 Sq.Ft.
    • 421 Royal Assembly Drive For Sale

      $3,249,900

      421 Royal Assembly Drive, Charleston, SC 29492

      • 5 Beds
      • 6 Baths
      • 6,867 Sq.Ft.
    • 1100 W Carolina Avenue For Sale

      $1,750,000

      1100 W Carolina Avenue, Hartsville, SC 29550

      • 8 Beds
      • 5 Baths
      • 6,890 Sq.Ft.
    • 118 Caddis Creek Road For Sale

      $259,000

      118 Caddis Creek Road, Irmo, SC 29063-8138

      • 3 Beds
      • 2 Baths
      • 1,350 Sq.Ft.
    • 1309 Farming Creek Road For Sale

      $432,950

      1309 Farming Creek Road, Irmo, SC 29063

    • 1822 Brevard Place For Sale

      $649,500

      1822 Brevard Place, Camden, SC 29020

      • 5 Beds
      • 3 Baths
      • 3,439 Sq.Ft.
    View All Properties

    Follow Us On Instagram